Overview
Design
Interior Architecture & Scenography
Architecture
Art
Photography
Archives
Home
About Me
Contact
Nitsan Cohn
Overview
Design
Interior Architecture & Scenography
Architecture
Art
Photography
Archives
Home
About Me
Contact
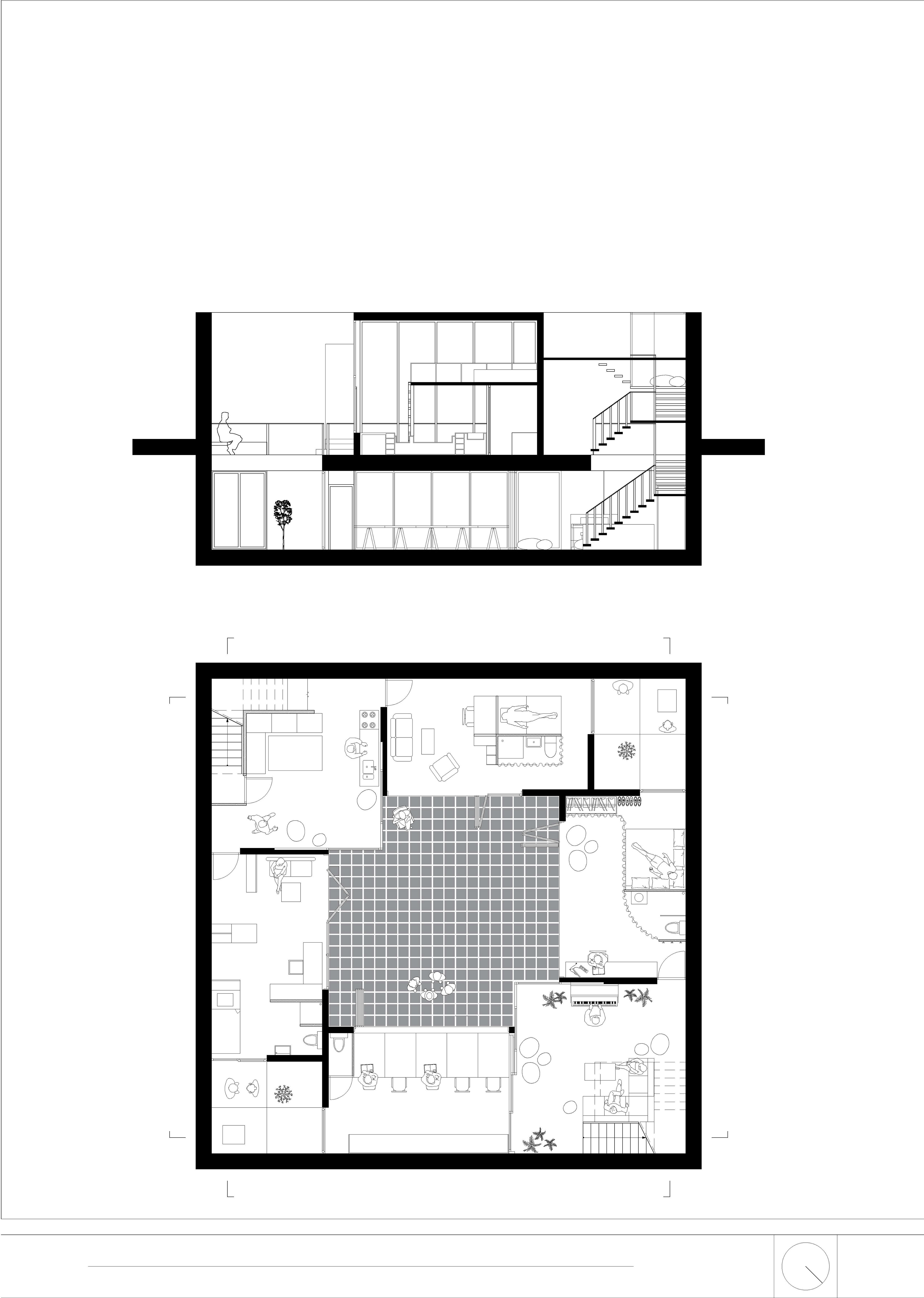
Intra-Muros
In a closed square (15m x 15m x 4m) ; 5 student's rooms and commons ; group project ; 225m2
↑
Back to Top