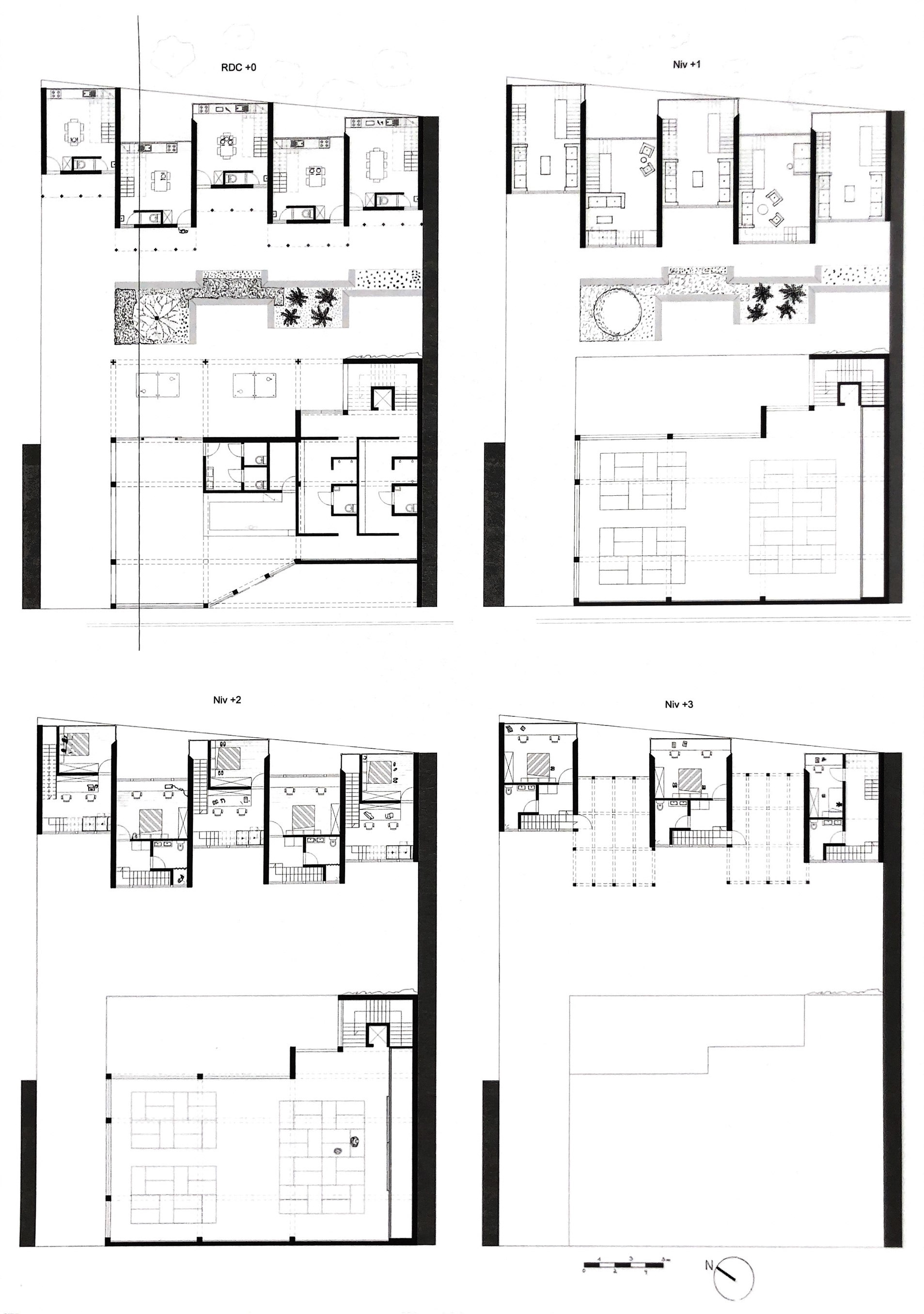
Sport Complex & Housing
5 housing (2 x 1 room, 70m2 ; 2x 2 rooms, 90m2 ; 1 x 3 rooms ; 115m2) + Sport Complex of 400m2 ; Schaerbeek, Belgium
5 housing (2 x 1 room, 70m2 ; 2x 2 rooms, 90m2 ; 1 x 3 rooms ; 115m2) + Sport Complex of 400m2 ; Schaerbeek, Belgium