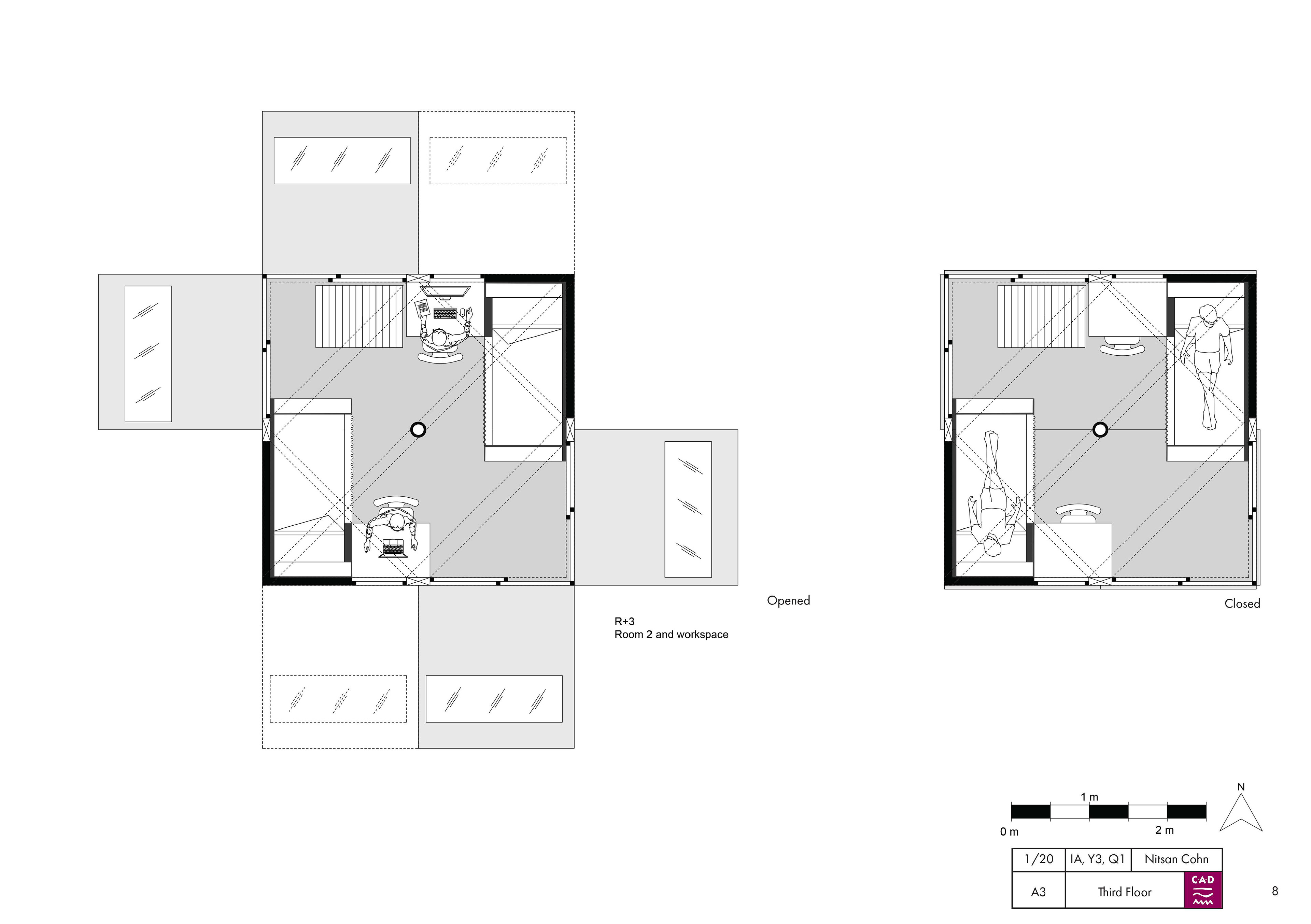
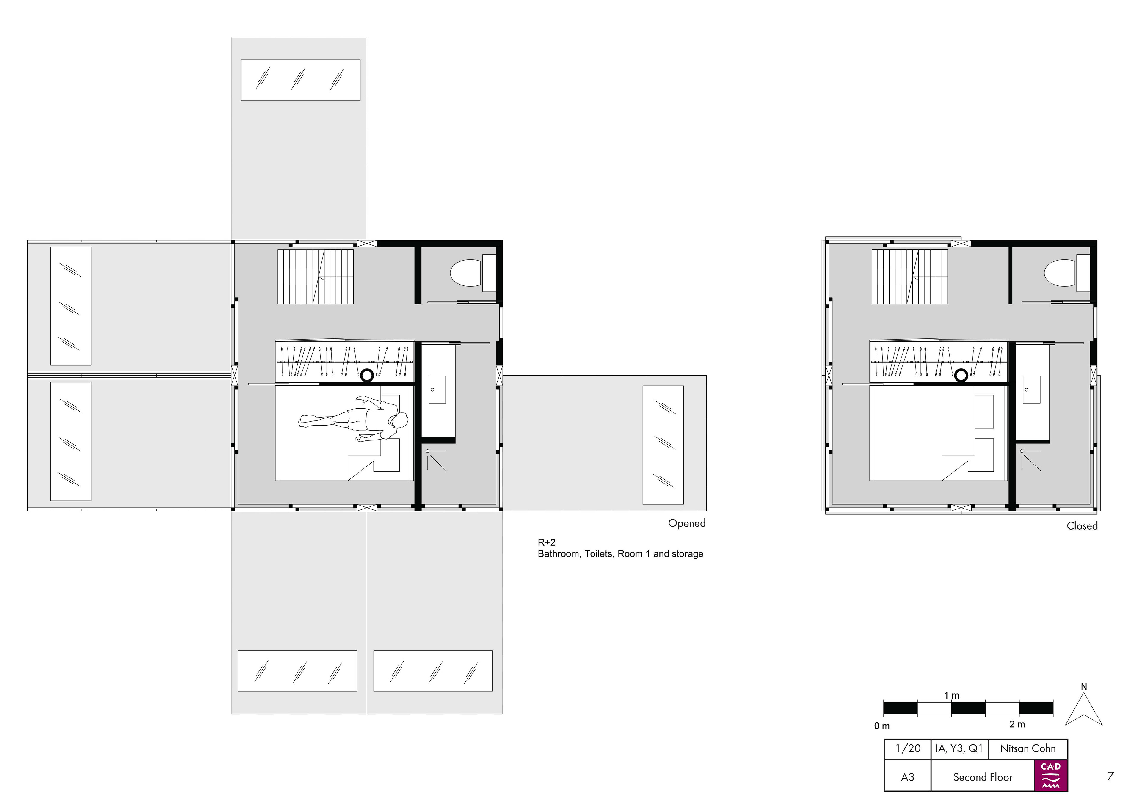
Design a cabin that will include all the necessary equipment to live in with 4 people ; 50m2 ; Brocéliande forest, France